第10弾は、昔の家と今の家の体感を可能とした事例
株式会社LIXIL(以下、LIXIL)は、地場工務店の匠が手掛けた断熱リノベの実例集『断熱リノベの匠』を展開しています。そしてこの度、第10弾としてSW(スーパーウォール)工法リフォーム加盟店の吉田建設株式会社(香川県、代表取締役 吉田 健二)が手掛けた、昔の家と今の家の違いを体感可能な事例を公開したので、お知らせします。
[画像1]https://digitalpr.jp/simg/2979/128866/500_314_202602201513426997fb964255c.jpg
瀬戸内海に面し、豊かな自然に囲まれた香川県高松市で、昭和26年に創業した吉田建設。今回ご紹介する断熱リノベの匠(たくみ)、吉田 健二 氏は、先代の志を引き継いで自社大工にこだわり、多くの職人を育成し、地域の住宅建築に長年にわたり貢献してきた。そんな吉田建設は、スーパーウォールによる新築住宅の高性能化には早くから取り組んできたが、リノベーションにはあまり積極的ではなかった。しかし、新築住宅が減り、古くなった住宅が空き家として増え続ける中で、既存住宅の断熱問題をなんとかしなければという想いと、築20~30年を迎えるお客様がライフステージの変化に伴いリフォームを行なっても断熱不足による寒さやヒートショックのリスクは我慢するしかないという現状を解決するために、今後の事業として性能向上リノベーションが不可欠だという結論に達したと吉田氏は語る。この決断から、耐震性はしっかりしていても断熱性が低い既存住宅がリフォーム時期を迎える市場に商機を見出すとともに、これまで培ってきた断熱・気密の技術を活かして、リノベで地域の住環境の未来を支えようとする志が感じられる。
[画像2]https://digitalpr.jp/simg/2979/128866/150_178_202602201513456997fb99f3966.jpg
吉田建設株式会社
代表取締役 吉田 健二 氏
75年前に先代が大工工事業として創業し、個人住宅、宅地開発、公共事業、ビル建築など幅広く事業を拡大しながら、地域とともに歩んできた吉田建設。そのなかで一貫して変わらない姿勢を引き継ぎ、自社大工による家づくりに情熱を注ぐ匠が吉田健二氏。新築住宅が減り、空き家が増え続ける地域の未来にビルダーとして何ができるのか。その新たな一歩として「性能向上リノベーション」の事業をスタートさせた。
性能向上リノベーションを新たな事業と位置付けた吉田氏が、まず着手したのは、事業再構築補助金を活用したモデルハウスの計画だった。縁あって自社が50年ほど前に手がけた民家を買い取ってリノベを行なったのだが、ビフォーアフターの暮らし心地の違いを実感してもらうために、あえて一部屋だけ昔のままの状態を残したそうだ。壁や窓も変えていないため冬は驚くほど寒く夏は暑い。部屋の匂いまで懐かしさを感じるほど、そのままだという。そうすることで、お客様に圧倒的な快適性の違いを肌で感じてもらうことができる。それだけではなく、建物の内外12箇所に温湿度計を設置してデータをとり、温度や不快指数、エアコンの電気代をグラフで表示。サーモカメラも導入するなど見える化の工夫を行なっているそうだ。もちろん、断熱性能の体感だけではなく、間取りやインテリアについても、暮らしやすさのポイントとして回遊動線を取り入れるなど、吉田建設のテイストを活かした空間提案を行なっている。
そして何より特筆すべきは、匠のアイデアと行動力による、地域の子どもたちを対象としたイベントの開催にある。それは先述の昔のままの部屋を利用した「むかしの家とこれからの家、何が違うの?体験ツアー」と題した夏休み自由研究向けの企画だ。未来を担う子どもたちに、脱炭素社会に向けた住宅の取り組みをモデルハウスで体験してもらい自由研究にまとめてもらおうという趣旨で、市のゼロカーボン推進課に企画を持ち込んだところ協力してもらえることになり、各小学校に募集チラシを配布してくれたそうだ。その結果、30名の小学生とその親御さんたちが参加され、しかもイベント後に子どもたちのレポートコンテストまで実施したのだとか。こうした取り組みは、親御さんの学びにもなり、口コミによる波及効果につながっていく。地域に貢献するビルダーとしての理想的な姿ではないだろうか。
[画像3]https://digitalpr.jp/simg/2979/128866/250_168_202602201238256997d7311528f.jpg
半世紀前に自社が手がけた住宅をリノベーションのBefore・Afterをリアル体験できるモデルハウスとして再生したResumu Lab.(リスム ラボ)。
再び住む新しく住み替えるの意味の「Re:住む」に、暮らしの実体験や研究施設( laboratory )の略語である「Lab.」を合わせて命名。
[画像4]https://digitalpr.jp/simg/2979/128866/600_194_202602201244116997d88b3afe3.png
[画像5]https://digitalpr.jp/simg/2979/128866/700_178_202602201246576997d9316792b.png
モデルハウスは、性能向上の体感はもちろんのこと、暮らしの空間としての素材・色調・ディテールにこだわった上質なしつらえ。大きな窓を介してLDKと中間領域の土間と外の眺望や庭など中と外とのつながり。和と北欧が融合したインテリア「ジャパンディスタイル」。それら要素の組み合せによって、心の豊かさを感じられる住まいを提案している。
[画像6]https://digitalpr.jp/simg/2979/128866/200_150_202602201245006997d8bcbb39d.jpg
「むかしの家とこれからの家 何が違うの?体験ツアー」の実際の様子。イベント後、自分の住んでいる家とおじいちゃんおばあちゃんの家を比較してレポートしてくれたお子さんもいたという。
[画像7]https://digitalpr.jp/simg/2979/128866/200_283_202602201245056997d8c1597f3.jpg
小学校で配布されたイベントチラシ
後援:高松市と記されているので、 親御さんも安心して参加できる。
[画像8]https://digitalpr.jp/simg/2979/128866/200_133_202602201245136997d8c94a079.jpg
「むかしの家」として、リノベ前のそのままの状態で残した2階の和室。50年ほど前の建物なので、壁は土壁、窓も一枚ガラス。断熱性の違いを実際に体感でき、家の歴史を情緒的に感じられる場所でもある。
モデルハウスが完成して一年半が経ち、リノベの相談件数も狙い通り多くなるなど順調な滑り出しを見せている新事業。しかし、課題はあると吉田氏はいう。それは、新築とは異なり一邸一邸の状態に合わせた臨機応変な負荷のかかる対応が必要になること。しかし、一方で将来的に新築とリノベが半々になってもいいと匠は考えている。それはなぜなのか?ハウスメーカーは新築を勧め、リノベ対応は自社で建てたお客様のみのことが多く、リフォーム専門会社は断熱・気密の技術があまりない。しかし自分たちは、建て替えとリノベを検討しているお客様に、適正な見立てをして両方の提案ができる。そして技術がある。需要があり価値が認められれば見合った価格にすることも可能に。だからホームページでもリフォームではなく、性能向上リノベーションと打ち出したそうだ。そこには匠の意気込みと自負、勝算が感じられる。これからの地域ビルダーの道をリノベで切り拓く挑戦は始まったばかり。さらなる成長に期待したい。
[画像9]https://digitalpr.jp/simg/2979/128866/330_247_202602201245176997d8cde65c4.jpg
[画像10]https://digitalpr.jp/simg/2979/128866/330_246_202602201245216997d8d157b76.jpg
[画像11]https://digitalpr.jp/simg/2979/128866/340_248_202602201245256997d8d57b764.jpg
[画像12]https://digitalpr.jp/simg/2979/128866/330_248_202602201245316997d8db058ee.jpg
50年経った住宅のため、水まわりの土台や柱が腐っていたそうだが、古い住宅を解体して簡単に産業廃棄物にしないとの想いから丁寧に改修工事が行われた。
[画像13]https://digitalpr.jp/simg/2979/128866/500_281_202602201245356997d8df30261.jpg
before
築50年の2階建住宅。前所有者が約10年間居住し、その後賃貸の借家として40年近く活用。
[画像14]https://digitalpr.jp/simg/2979/128866/500_301_202602201245396997d8e37c0e2.jpg
after
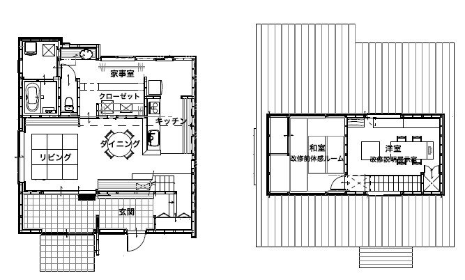
建物形状はそのまま活かし間取りを一新。2階には体感ルーム、説明展示室が用意されている。
Reform Data
延床面積:32.37坪/木造2階建/築年数:1977年に竣工・築49年/エリア:香川県高松市牟礼町
断熱リフォームによる性能改善:省エネ区分 6地域
改修前UA値:3.89 W/m²K 改修後UA値:0.36W/m²・K C値:1.01㎠/㎡
[画像15]https://digitalpr.jp/simg/2979/128866/300_158_202602201245446997d8e8b665b.jpg
まるごと断熱リフォームは、今ある住まいを、一棟まるごと断熱改修することで高性能住宅化できる先進の工法。すぐれた性能の断熱材により、壁・天井・床をしっかり覆い、高断熱の窓や玄関ドアに交換。外気温の影響が少なく、快適・健康・省エネを実感できる暮らしを実現する。
About LIXIL
LIXILは、世界中の誰もが願う豊かで快適な住まいを実現するために、日々の暮らしの課題を解決する先進的なトイレ、お風呂、キッチンなどの水まわり製品と窓、ドア、インテリア、エクステリアなどの建材製品を開発、提供しています。ものづくりの伝統を礎に、INAX、GROHE、American Standard、TOSTEMをはじめとする数々の製品ブランドを通して、世界をリードする技術やイノベーションで、人びとのより良い暮らしに貢献しています。現在約53,000人の従業員を擁し、世界150カ国以上で事業を展開するLIXILは、生活者の視点に立った製品を提供することで、毎日世界で10億人以上の人びとの暮らしを支えています。
株式会社LIXIL(証券コード: 5938)は、2025年3月期に1兆5,047億円の連結売上高を計上しています。
LIXILグローバルサイト:https://www.lixil.com/jp/
関連リンク
LIXILグローバルサイト
http://www.lixil.com/jp



























