大型商業施設やスポーツスタジアムがあり、新潟市で一番にぎわっていると言っても過言ではない、鳥屋野潟の南部地区がさらに変わりつつあります。2028年4月にも、巨大な商業エリアが開業する計画です。関係者の間では、集客の核として「倉庫型商業施設」が入る案もささやかれています。アルビレックス新潟のホームゲームと重なった日の渋滞も懸念される大規模開発。新潟日報社は開発を担当する企業が新潟県へ届け出た書類を入手‼その計画の全貌を読み解きます。
【関連記事】
コストコ南アルプス倉庫店(山梨県)に行ってみた!
アルビ試合と“倉庫型商業施設”で大渋滞?メダカ絶滅も危惧?オンブズマンが県に申し入れ【申入書ほぼ全文付き】
新潟日報社は県に情報公開請求を行い、開発企業の大和ハウス工業(大阪市)などが県に届け出た「特定施設新設届出書」の写しを入手しました。
◆ガソリンスタンドも?
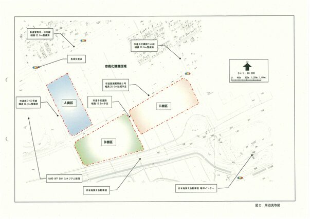
届出書によると、施設の名称は「(仮称)鳥屋野潟南部交流拡大エリア」。ハードオフ・エコスタジアムと新潟市道弁天橋姥ケ山線の間、新潟市中央区姥ケ山、長潟に整備されます。
現地は現在、一面の田んぼですが、計画が実現すれば、その風景は様変わりしそうです。
エリアは三つの「街区」に分かれており、建設される建物は計9棟もあります。道路を挟んでエコスタの東側に整備されるのが「A街区」。物販棟が2棟建ちます。
その南側に道路を挟んで「B街区」が造成されます。ここは物販棟が1棟、非物販棟が1棟が建つ予定です。
弁天橋姥ケ山線沿いの「C街区」には、物販棟5棟が立ち並ぶ計画です。
B街区の1棟が最も大きな建物で店舗面積1万3933平方メートル。ほぼ同じ規模でA街区の1棟が1万3224平方メートルとなっています。
B街区の建物のうち、唯一の「非物販」となっている建物はガソリンスタンドの予定と書かれています。
C街区の建物の店舗面積は346平方メートル~7800平方メートル。A・B街区に比べれば、1棟ずつは小さいですが、5棟合わせた店舗面積は1万8510平方メートルとなり、三つの街区で最も広くなりそうです。
◆アルビの試合と重なると?
期待が膨らむ開発計画ですが、懸念は交通渋滞となりそうです。周辺にはビッグスワン、エコスタ、既存の大規模商業施設もあり、サッカーJ1アルビレックス新潟のホームゲームなどスポーツイベント開催時には、今も渋滞が起きがちです。2月に計画が明らかになると、SNSには大渋滞を心配する投稿があふれました。
新商業エリアが見込む集客は、祝休日で1日当たり約5万6千人にも達します。計画では計2852台を収容する駐車場ができるほか、新潟市は主要なアクセス道となるA街区とB・C街区の間の道路を拡幅する予定を明らかにしています。また計画図ではB街区、C街区の間にも道路が通る予定となっています。
花角英世知事も交通渋滞の悪化に懸念を示しています。3月下旬の定例記者会見では「スマートインターチェンジを造るべきだという意見を持っている人もいる」などと話し、「交通の流れをどうするかは避けては通れない課題だ」と対策の必要性を指摘しており、今後の対応が注目されます。
◆開発の大和ハウス工業、「地域の役に立つ施設にしたい」
9棟に入る店舗はどういう業種で、公表時期はいつごろになるのでしょうか?
大和ハウス工業広報企画部に聞きましたが「店舗の詳細や公表時期はまだ申し上げられない」と、具体的な回答は得られませんでした。
ただ、「地域の役に立つ施設にしたい」とのことで、交通渋滞についても「心配する声を聞いている。対応を関係者で検討、調整していきたい」としています。





























